VIA MURAT
In evidenza
AFFITTO
- €1.300
Descrizione
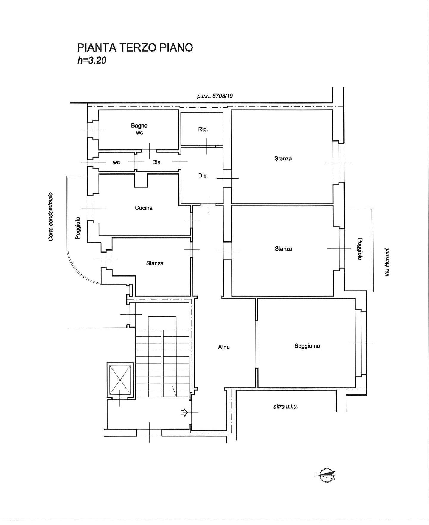
In elegante palazzo degli anni ’40 proponiamo in locazione, al secondo piano con ascensore , appartamento signorile di ampia metratura. Internamente si compone di ampio ingresso, salone completamente finestrato , due camere matrimoniali di cui una con accesso al poggiolo sulla via Hermet, cameretta, cucina abitabile con accesso ad ulteriore poggiolo , ripostiglio , due bagni e cantina. Dispone di aria condizionata con due split. L’appartamento è parzialmente arredato. Persone referenziate. Contratto 3+2 con cedolare secca
Planimetria e documenti
Planimetrie Via Murat 14_Pagina_1
Planimetrie Via Murat 14_Pagina_2
Indirizzo
Apri Google Maps-
Indirizzo: via Murat 14
-
Città: Trieste
-
Zip/Postal Code: 34100
-
Zona: Campo Marzio
Dettagli
Updated on Aprile 9, 2026 at 5:45 pm-
Prezzo €1.300
-
Dimensioni dell'immobile 130
-
Camere 3
-
Stanze 4
-
Bagni 2
-
Anno di costruzione 1940
-
Tipo di immobile Appartamento
-
Contratto AFFITTO
-
Riscaldamento Centralizzato
-
Spese condominiali da quantificare
-
Piano 2
-
Ascensore Si
Classe Energetica
-
Classe energetica: E
-
Efficienza energetica: 183,42
- A+
- A
- B
- C
- D
- 183,42 | Classe Energetica EE
- F
- G
- H
Contattaci per informazioni
Immobili simili
- Astri Klun
