VIA DI ROMAGNA – Affascinante mansarda
- €275.000
Descrizione
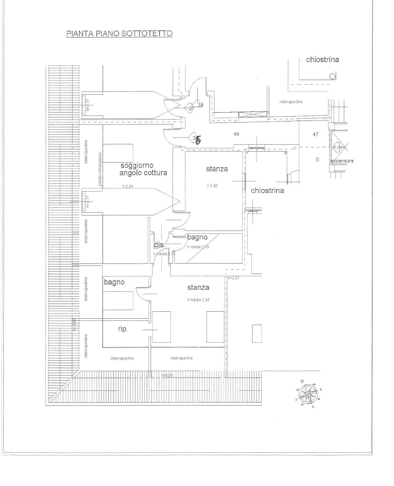
Nel centro di Trieste, proponiamo una splendida mansarda di circa 79 mq situata al quinto ed ultimo piano con ascensore di uno stabile completamente ristrutturato nel 2006.Luminoso, accogliente e ricco di fascino, l’appartamento conquista per i suoi ambienti caldi e ben distribuiti: zona giorno con angolo cottura, due camere da letto, doppi servizi e spazi studiati per garantire comfort e funzionalità.Le travi a vista e l’atmosfera tipica delle mansarde rendono questa proprietà unica e particolarmente piacevole da vivere, ideale per chi desidera una casa con personalità nel pieno centro cittadino.Ottime condizioni interne, riscaldamento autonomo e contesto elegante con ingresso condominiale curato.Soluzione perfetta sia come abitazione sia come investimento.Attualmente locato con disponibilità da ottobre 2026.Una proposta rara per chi cerca il fascino dell’ultimo piano unito alla comodità del centro città.
Planimetria e documenti
Indirizzo
Apri Google Maps-
Indirizzo: via di Romagna 2
-
Città: Trieste
-
Zip/Postal Code: 34100
-
Zona: Centro
Dettagli
Updated on Maggio 12, 2026 at 12:07 pm-
Prezzo €275.000
-
Dimensioni dell'immobile 79
-
Camere 2
-
Stanza 1
-
Bagni 2
-
Anno di costruzione 1900
-
Tipo di immobile Appartamento
-
Contratto VENDITA
-
Spese condominiali 1000
-
Piano 5
-
Ascensore Si
-
Categoria catastale A/2
Contattaci per informazioni
Immobili simili
- Astri Klun
