VIA PIRANO
- €75.000
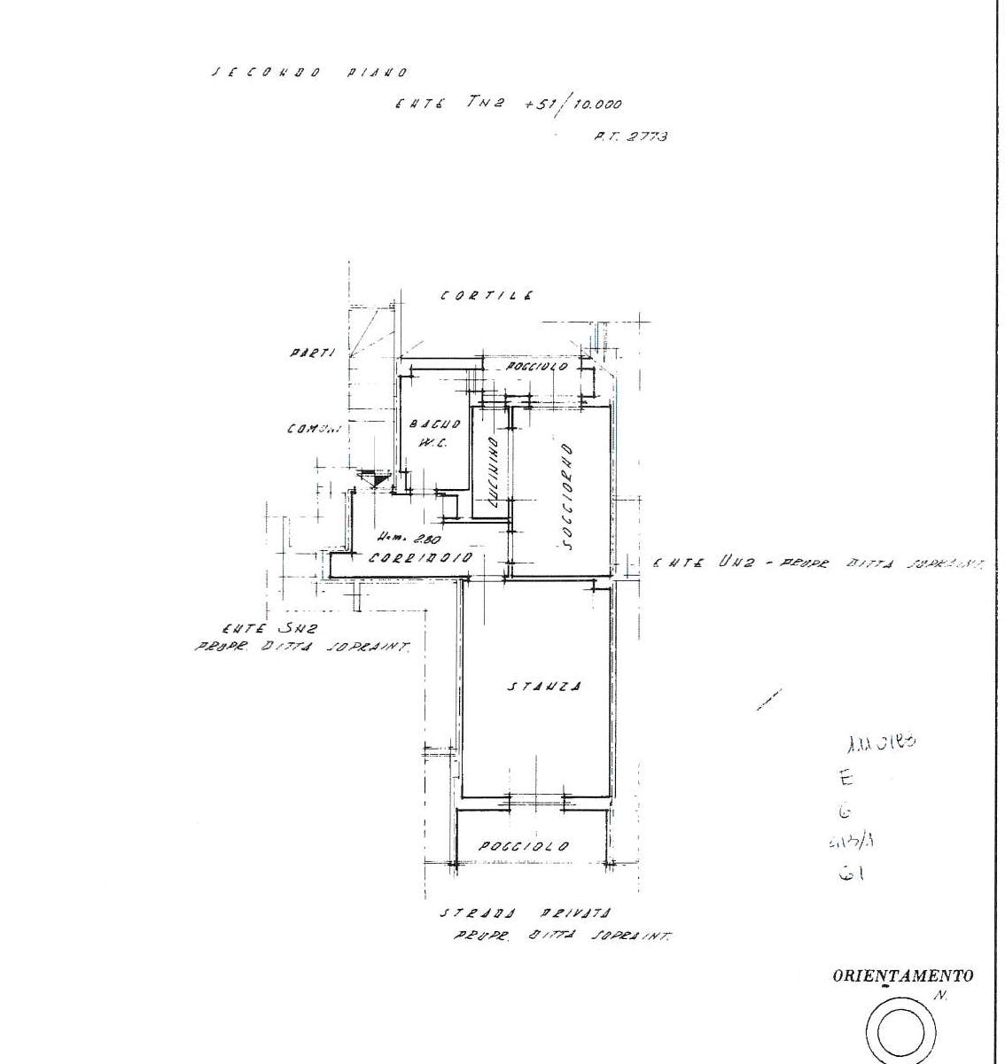
Descrizione
Nella vivace zona di Baiamonti, proponiamo un appartamento composto da ingresso, tinello con poggiolo, cucinotto, una camera da letto con poggiolo ed un bagno, offrendo così un’ottima soluzione per coppie o single in cerca di un nuovo inizio in una zona ben servita della città. La posizione dell’immobile consente di raggiungere facilmente negozi, servizi e mezzi di trasporto, rendendo questo appartamento una scelta ideale per chi desidera vivere in un contesto dinamico o per chi desidera investire per poi affittare. Le condizioni attuali richiedono una ristrutturazione, permettendo così di personalizzare gli ambienti secondo i propri gusti e necessità. Il riscaldamento è centralizzato, garantendo comfort durante i mesi invernali. APE in fase di rilascio.
Planimetria e documenti
Indirizzo
Apri Google Maps-
Indirizzo: via Pirano 19
-
Città: Trieste
-
Zona: Baiamonti - Valmaura
Dettagli
Updated on Aprile 27, 2026 at 10:51 am-
Prezzo €75.000
-
Dimensioni dell'immobile 44
-
Camera 1
-
Stanza 1
-
Bagni 1
-
Anno di costruzione 1961
-
Tipo di immobile Appartamento
-
Contratto VENDITA
-
Spese condominiali 80
-
Piano 2
-
Ascensore Si
-
Categoria catastale A/3
-
Rendita catastale € 317,62
Contattaci per informazioni
Immobili simili
- Astri Klun
