VIA BAIAMONTI
In evidenza
VENDITA
- €94.000
Descrizione
Proponiamo in vendita interessante appartamento a reddito, locato fino al 31/05/2027, situato al terzo piano di uno stabile completamente riqualificato con interventi Superbonus 110%. L’immobile è ben distribuito e funzionale negli spazi ed è composto da cucina, salottino , camera da letto , bagno e cantina. Ambienti completamente arredati. Dotato di riscaldamento autonomo e aria condizionata. Soluzione ideale per investimento. Ape in fase di rilascio.
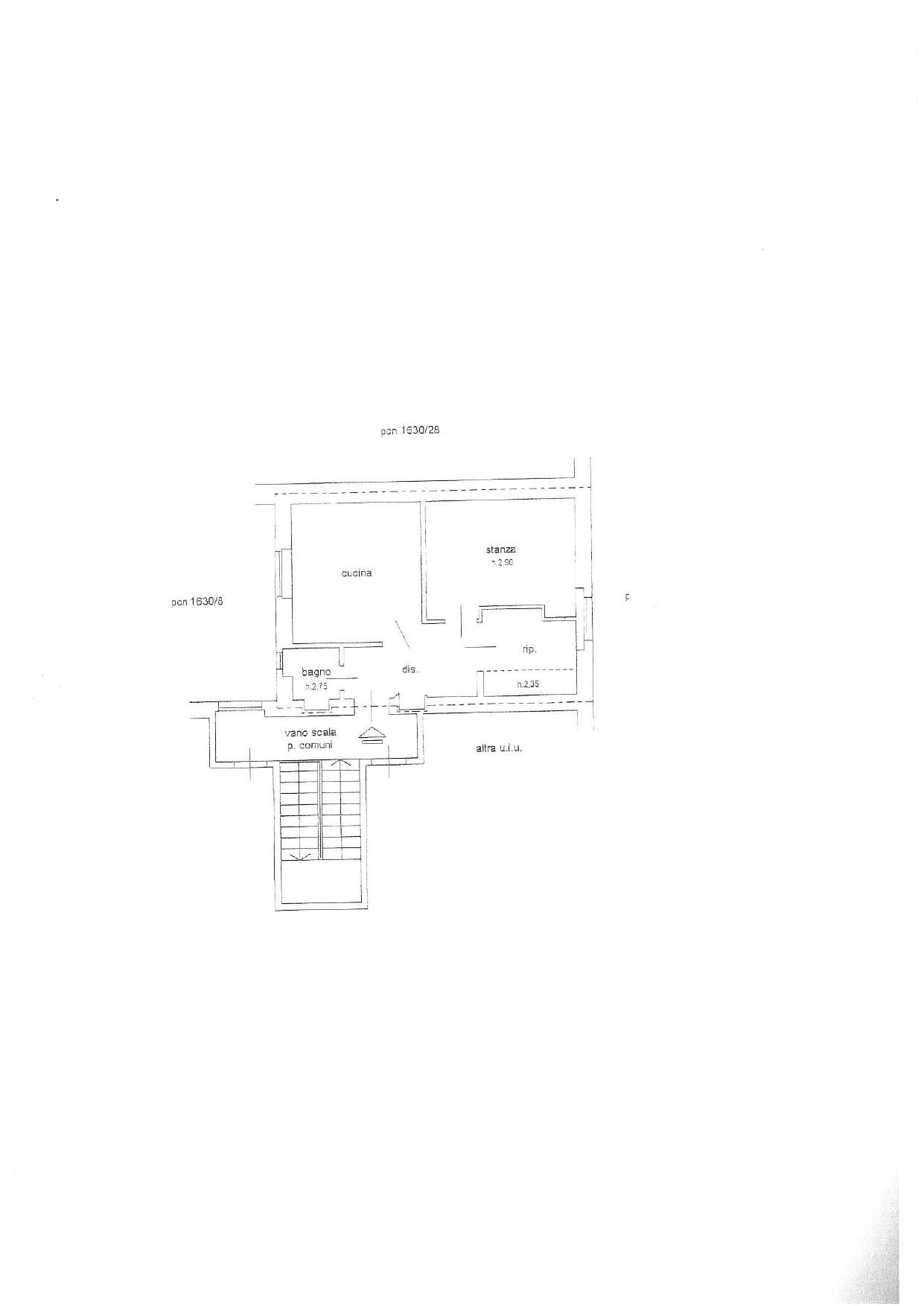
Planimetria e documenti
Planimetria app.to_page-0001
Indirizzo
Apri Google Maps-
Indirizzo: Antonio Baiamonti, 45
-
Città: Trieste
-
Zona: Baiamonti - Valmaura
Dettagli
Updated on Marzo 3, 2026 at 10:21 am-
Prezzo €94.000
-
Dimensioni dell'immobile 42
-
Camera 1
-
Bagni 1
-
Anno di costruzione 1939
-
Tipo di immobile Appartamento
-
Contratto VENDITA
-
Riscaldamento Autonomo
-
Spese condominiali 40
-
Piano 3
-
Ascensore No
-
Categoria catastale A/4
-
Rendita catastale € 340,86
Contattaci per informazioni
Immobili simili
- Astri Klun
