VIA FRANCA
In evidenza
VENDITA
- €190.000
Descrizione
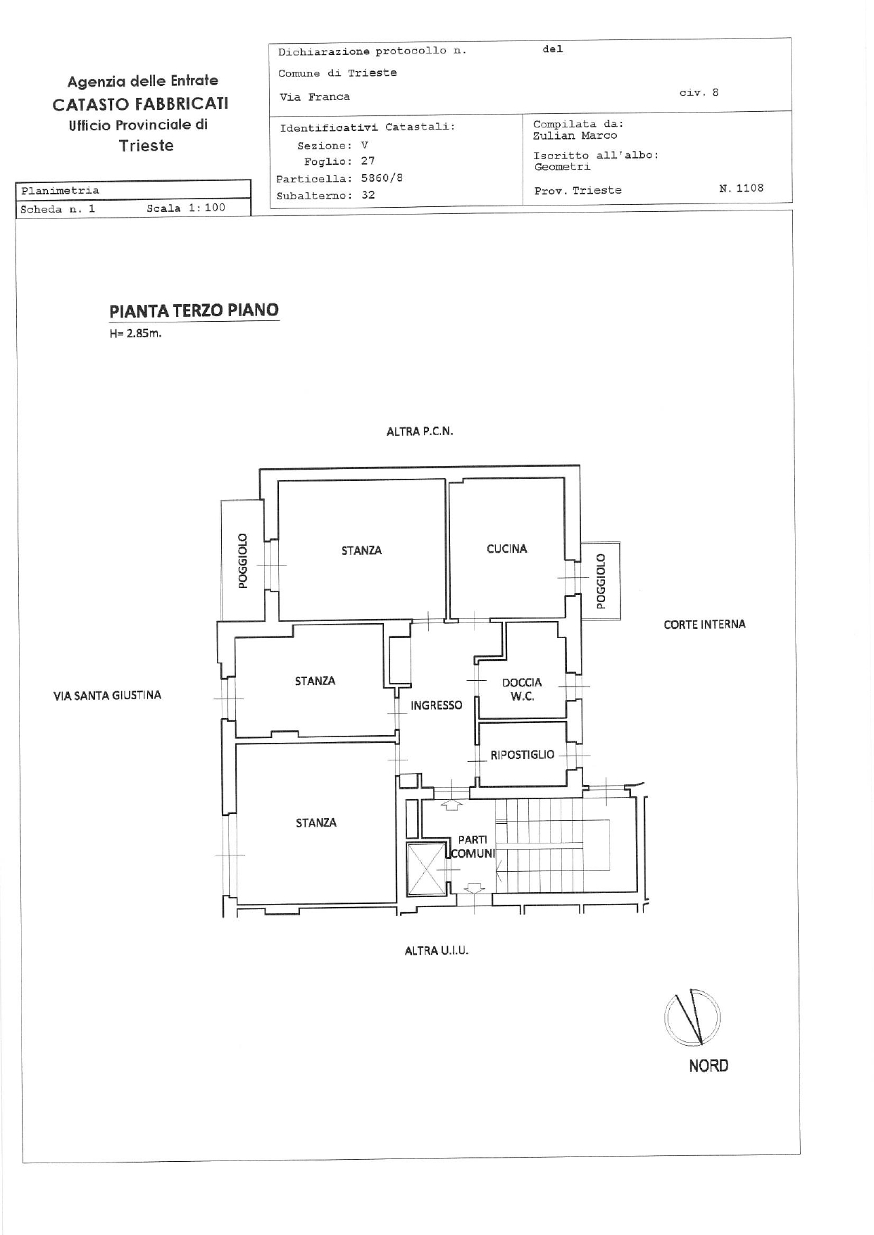
Proponiamo in vendita, nella tranquilla e ricercata zona di San Vito-Sant’Andrea, appartamento composto da corridoio di ingresso, cucina abitabile con poggiolo su corte interna, soggiorno, camera matrimoniale con poggiolo con scorcio mare, seconda camera, bagno completo finestrato, ampio ripostiglio e cantina. L’appartamento è situato al terzo piano con ascensore di uno stabile oggetto di recenti ed importanti interventi di riqualificazione. Internamente l’alloggio deve essere rimodernato. Ape in fase di rilascio.
Planimetria e documenti
Planimetria Via Franca 8_page-0001
Planimetria Via Franca 8_page-0002
Indirizzo
Apri Google Maps-
Indirizzo: franca 8
-
Città: Trieste
-
Zip/Postal Code: 34100
-
Zona: San Vito
Dettagli
Updated on Dicembre 17, 2025 at 10:42 am-
Prezzo €190.000
-
Dimensioni dell'immobile 85
-
Camere 2
-
Bagni 1
-
Anno di costruzione 1957
-
Tipo di immobile Appartamento
-
Contratto VENDITA
-
Riscaldamento Centralizzato
-
Piano 3
-
Ascensore Si
-
Categoria catastale A/2
-
Rendita catastale 1022,58
Caratteristiche
Contattaci per informazioni
Immobili simili
- Astri Klun
